![]() |
![]() |
![]() |
⇩ページ下部に写真ギャラリーあります⇩
新築戸建 4,280万円(税込)
| 所在地 | 交通 | 間取 |
土地面積 |
引渡時期 |
| 埼玉県所沢市狭山ケ丘 2-107-56 |
西武池袋線 狭山ヶ丘駅 徒歩9分 | 3LDK | 97.59m² 96.88m² |
即時 |
物件情報
~新築分譲住宅~
≪売主物件につき仲介手数料無料!!≫
【木家nity狭山ヶ丘丁目のおすすめポイント】
南東・南西に面した開放的で陽当たりの良い角地!
◎狭山ヶ丘駅まで徒歩9分♪
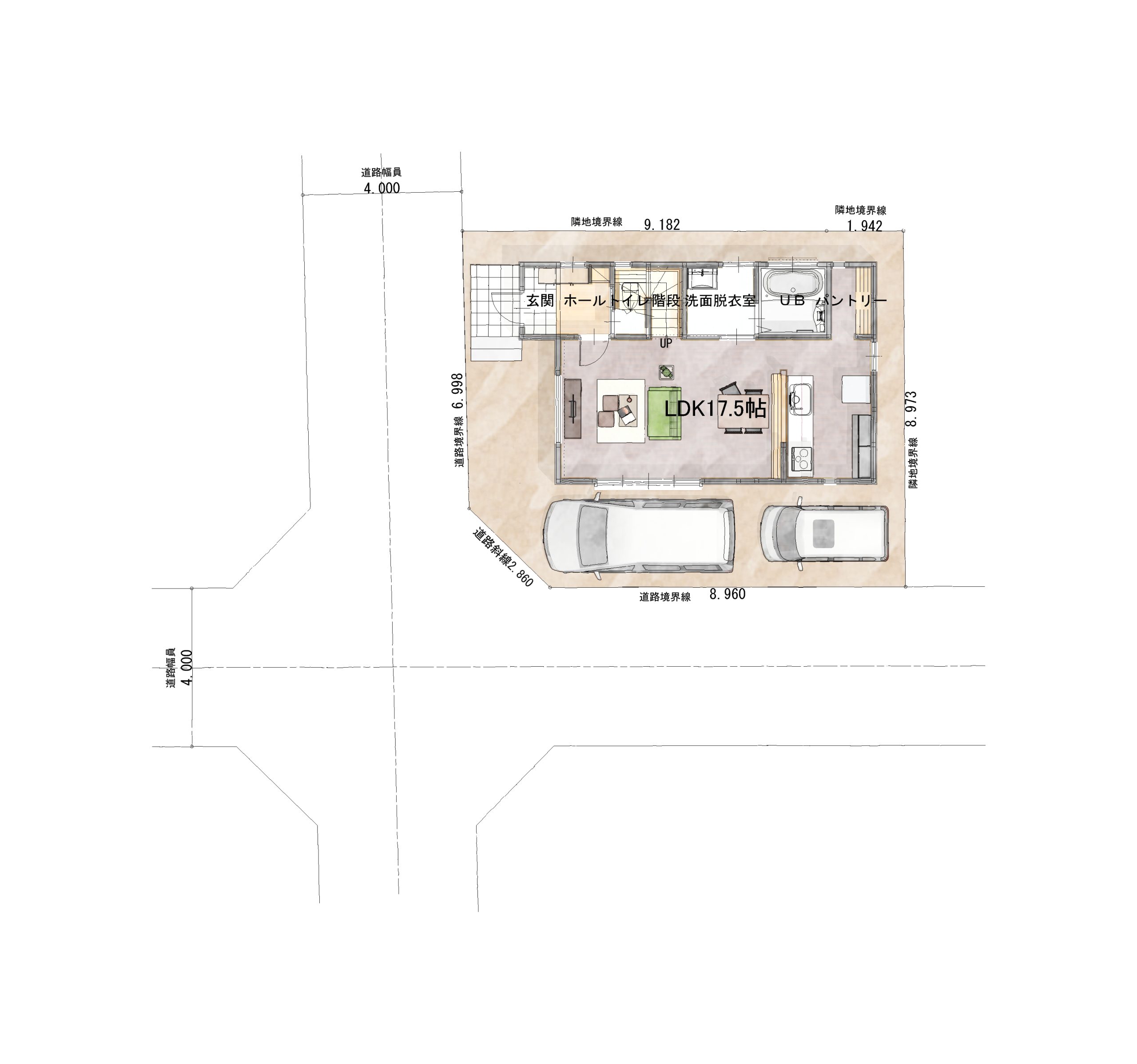
◎自然とご家族が集まる広々17.5帖のリビング☆
◎パントリーやファミクロで快適生活♪
◎カースペース2台(車種による)☆
◎コンビニやスーパーが近く便利な住環境♪
◎11帖の屋上は、BBQやプールなど、プライベート時間充実☆
◎生活に欠かすことができない水廻り!キッチンや洗面台、トイレについては業界屈指のバリエーションと、デザイン性・使いやすさを追求した「タカラ」の最新設備を採用しています。
是非とも「お掃除が楽!」「キレイが続く♪」を実感してください。地元所沢市で50年以上お家を建ててきた当社が自信をもってお勧めいたします。
ギャラリー
![]() |
![]() |
![]() |
![]() |
![]() |
![]() |
![]() |
![]() |
![]() |
![]() |
![]() |
![]() |
![]() |
![]() |
![]() |
![]() |
![]() |
![]() |
![]() |
![]() |
![]() |
![]() |
![]() |
![]() |
![]() |
![]() |
![]() |
![]() |
![]() |
![]() |
![]() |
![]() |
![]() |
![]() |
![]() |
![]() |
![]() |
ライフインフォメーション
|
若狭小学校 |
狭山ヶ丘中学校 |
セブンイレブン |
TAIRAYA |
和ヶ原公園 |

物件概要
| 物件番号 | 475 |
| 交通 | 西武池袋線 狭山ヶ丘駅 徒歩9分 |
| 学区 | 若狭小学校 1,100m 狭山ヶ丘中学校 2,400m |
| 土地面積・坪 | 97.59m²・29.52坪 |
| 建物面積・坪 | 96.88m²・29.3坪 |
| 建ぺい率 | 60% |
| 容積率 | 100% |
| 用途地域 | 第一種低層住居専用地域 |
| 都市計画 | 市街化区域 |
| 建物構造 | 木造2階建 |
| 地目 | 宅地 |
| 取引態様 | 売主 |
| 土地権利 | 所有権 |
| 間取詳細 | (1階)LDK17.5、(2階)洋6、(2階)洋7、(2階)洋6.25 |
| 接道 | 南東 4m(幅員) 南西 4m(幅員) 公道 |
| 特色 |
住宅保証保険付き、角地、床下収納、フラット35SA利用可、南道路、食器洗乾燥機、公営水道、耐震等級3(最高等級クリア)、公共本下水、駐車場あり、東京電力、駐車場2台可、都市ガス、★インフラ環境・・・電気・公営水道・本下水・都市ガス、☆設備・仕様・・・システムキッチン,システムバス,ウォシュレット,ペアガラス,TVモニター付インターフォン,24時間換気,浴室暖房乾燥機、ZEH(断熱基準クリア) |
地図

藤和建設株式会社は、所沢エリアを中心とした、新築一戸建て・増改築・リフォーム・土地販売を主な業務としている不動産会社で、西武池袋線狭山ヶ丘駅から徒歩2分のアットホームなお店です。お客様の大切なお住まいを、地域に密着した不動産会社である弊社スタッフが納得いくまで責任を持ってお手伝い致します!売主物件『木家nity』シリーズは、間取りや収納スペースの確保にこだわりを持ち、物件ごとに快適に暮らせる工夫が施されています。また、広々とした「屋上つきの家」であなただけのプライベート空間を楽しめます。もちろん、ご購入後のアフターサービスも当社にお任せください!
………………………………………………………各SNS随時更新中!!
下記クリックでぜひチェック
………………………………………………………

【弊社物件の主な最寄り駅】
■西武池袋線/所沢駅、西所沢駅、小手指駅
狭山ヶ丘駅、武蔵藤沢駅
■西武新宿線/所沢駅、航空公園駅、新所沢駅
入曽駅、狭山市駅、新狭山駅
■西武狭山線/下山口駅
*-*-*ー*-*-*-*-*-*-*ー*-*
創業50年の実績 藤和建設株式会社
*-*-*ー*-*-*-*-*-*-*ー*-*
















































